Bilocale in vendita

Alassio, Via San Giovanni Battista
€ 265.000
2 locali 2 locali
50 Mq 50 Mq
1 bagno 1 bagno

Bilocale in vendita

Alassio, Via San Giovanni Battista

Descrizione annuncio

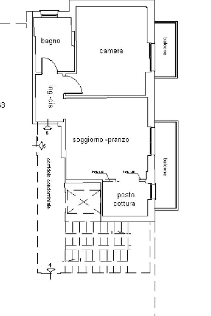
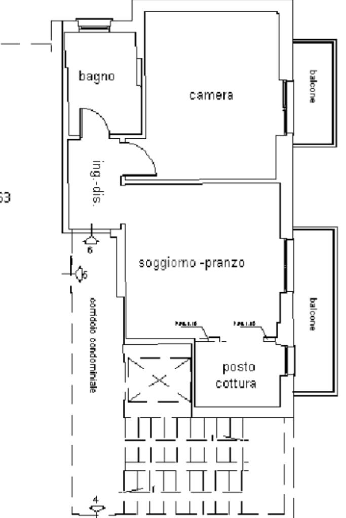
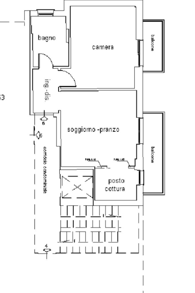
BILOCALE DI NUOVA RISTRUTTURAZIONE CON CANTINA E POSTO AUTO CONDOMINIALE.

Alassio – a pochi passi dal centro
In stabile in ottimo stato di manutenzione, dotato di ascensore, proponiamo appartamento situato al primo piano e recentemente e finemente ristrutturato (2024). L’ingresso si apre su un disimpegno che conduce all’ampia e luminosa zona giorno con angolo cottura, servita da un primo balcone. La zona notte comprende una camera matrimoniale con ulteriore sfogo esterno e un bagno finestrato completo di box doccia, che garantisce luce e areazione naturale. A completare la proprietà cantina e posto auto condominiale.

L’abitazione è completamente elettrica, equipaggiata con piastra a induzione e impianto di climatizzazione caldo/freddo con pompe di calore di ultima generazione, soluzione che assicura comfort e risparmio energetico. Le spese condominiali contenute ne accrescono ulteriormente l’attrattiva.

Un immobile pronto da vivere, ideale come seconda casa al mare o come opportunità di investimento ad Alassio.

Mostra tutto

Nelle vicinanze

Trasporto pubblico Trasporto pubblico
stazione di Alassio
stazione di Alassio
940 m
Trasporto pubblico
870 m
Laigueglia
Laigueglia
2,3 Km
Ricariche auto elettriche Ricariche auto elettriche
Villa Della Pergola
1,3 Km
Farmacia Farmacia
Farmacia S. Ambrogio
500 m
Ospedali Ospedali
Ospedali
750 m
Croce Bianca Laigueglia
2,5 Km
Supermercati Supermercati
Carrefour Market
580 m
Negozi Negozi
Negozi
500 m
La Foccaccia di Ugo
520 m
United Colors of Benetton
580 m
Pasticceria Oliva2
580 m
Il fornetto
640 m
Bar Bar
Rudy Cafè
730 m
Sangiuccu
1,0 Km
Caffè Italia
2,6 Km
Ristoranti Ristoranti
Pizzeria e focacceria Express
360 m
L'Apescheria
410 m
Pizzeria La Pantera Rosa
500 m
Ristorante Pizzeria da Tonino
600 m
U'Recantu
720 m
Mostra tutto

Caratteristiche

Rif.:
61116599
Piano:
1 di 4 con ascensore (Piano basso)
Balconi:
2
Camere da letto:
1
Arredamento:
Completo
Condizionamento:
Autonomo
Mostra tutto
Prezzo Prezzo
€ 265.000
Rata mutuo Rata mutuo
€ 1.249 / mese
Spese annue Spese annue
€ 600
Proponi il tuo prezzoProponi il tuo prezzo

Classe Energetica

B
B
B
B
B
B
B
B
B
EP globale non rinnovabile:
88.54 kW h/m² anno
EP invernale del fabbricato:
EP estiva del fabbricato:
Anno di costruzione:
1950
Riscaldamento:
Autonomo
Tipo impianto:
Ad aria
Tipo alimentazione:
Aria

Ti interessa visionare l'immobile?

Fissa un appuntamento  Fissa un appuntamento

Richiedi informazioni

Clicca su Leggi per aprire l'informativa
* Questi campi sono obbligatori

Calcola il tuo mutuo

Semplice e senza impegno
Anticipo

( % )
Mutuo

( % )

pochi semplici passi

inserisci i tuoi dati
Questionario completato
Grazie per aver richiesto un appuntamento senza impegno con un nostro Consulente del Credito e Assicurativo.

Hai inserito correttamente tutti i dati necessari e a breve riceverai una e-mail con un link da convalidare per inviare i tuoi dati.
Affiliato
Studio Alassio Sas
Via Milite Ignoto, 22 17021 Alassio (SV)

Il nostro staff


  • Francesco Puleio
    Affiliato

  • Luca Battaglia
    Affiliato

  • Gianluca Gaino
    Responsabile
Via Milite Ignoto, 22 17021 Alassio (SV)
Zona: Alassio
Mostra su mappa
Orari: Dal Lunedi al Sabato dalle ore 09.00 alle ore 12.30 e dalle 15.30 alle 19.30 Domenica su appuntamento
Affiliato
Studio Alassio Sas
Via Milite Ignoto, 22 17021 Alassio (SV)

2026 Tecnocasa Franchising S.p.A. - P. IVA 08365160152 - Via Monte Bianco 60/A 20089 Rozzano (MI). Ogni agenzia ha un proprio titolare ed è autonoma. Privacy policy | Policy utilizzo | Cookie policy