Trilocale in vendita

Alassio, Via Aleramo - Moglio
€ 445.000
3 locali 3 locali
75 Mq 75 Mq
1 bagno 1 bagno

Trilocale in vendita

Alassio, Via Aleramo - Moglio

Descrizione annuncio

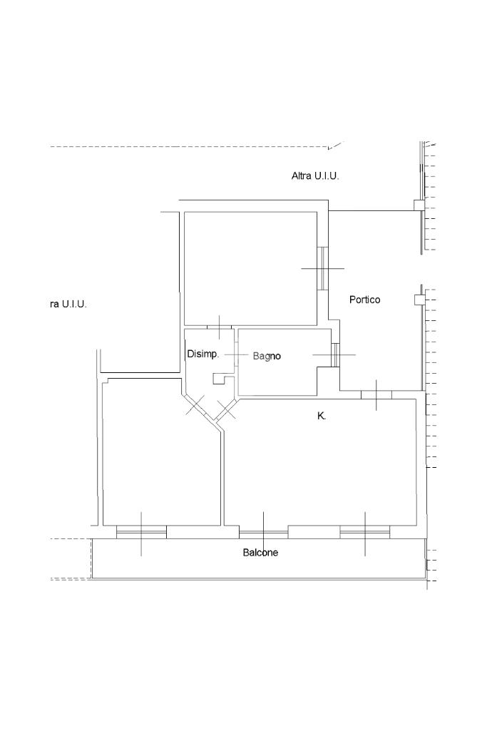
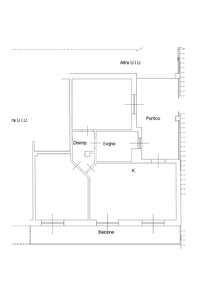
All’inizio della ricercata zona di Moglio, sulle prime alture di Alassio, in posizione dominante e soleggiata, proponiamo un appartamento capace di coniugare privacy, comfort e una splendida vista aperta che abbraccia la collina fino al suggestivo Golfo di Alassio.

L’ingresso è completamente indipendente e avviene attraverso un ampio dehor privato, uno spazio esterno ideale per pranzi all’aperto, momenti di relax o per accogliere gli ospiti in totale riservatezza. Dal dehor, tramite cancelletto privato, si accede comodamente al parcheggio condominiale. Prima dell’ingresso principale troviamo inoltre un pratico locale attualmente adibito a lavanderia, con la possibilità di essere facilmente trasformato in un secondo bagno di servizio.

L’abitazione si apre su una luminosa zona living con cucinina a vista; due splendide porte finestre regalano una vista mare impagabile e donano all’ambiente luce naturale per tutto il giorno, creando un’atmosfera ariosa e accogliente.

La zona notte è composta da due camere matrimoniali: la prima con finestra affacciata direttamente sul Golfo, la seconda con finestra sul dehor privato, entrambe ben dimensionate e silenziose. Completa la proprietà un bagno finestrato.

L’immobile viene ceduto completo di arredo, soluzione ideale per chi desidera una casa pronta da vivere fin da subito. È inoltre dotato di impianto di allarme e riscaldamento autonomo a radiatori, garantendo comfort e gestione indipendente dei consumi in ogni stagione.

Incluso nel prezzo un comodo posto auto privato. È inoltre disponibile, con trattativa a parte, un box auto al prezzo di € 50.000.

Una proposta perfetta sia come prima casa sia come elegante residenza per le vacanze, ideale per chi desidera la tranquillità della collina, una vista mare aperta e la comodità dei servizi di Alassio a pochi minuti.

Mostra tutto

Nelle vicinanze

Trasporto pubblico Trasporto pubblico
stazione di Alassio
stazione di Alassio
1,5 Km
Trasporto pubblico
1,8 Km
Ricariche auto elettriche Ricariche auto elettriche
Villa Della Pergola
1,5 Km
Farmacia Farmacia
Farmacia S. Ambrogio
1,6 Km
Ospedali Ospedali
Ospedali
1,2 Km
Supermercati Supermercati
Carrefour Market
1,4 Km
Negozi Negozi
La Foccaccia di Ugo
1,5 Km
Negozi
1,5 Km
United Colors of Benetton
1,6 Km
Il fornetto
1,6 Km
Pasticceria Oliva2
1,6 Km
Bar Bar
Rudy Cafè
1,6 Km
Sangiuccu
1,7 Km
Ristoranti Ristoranti
Ristorante Castello
890 m
Pizzeria La Pantera Rosa
1,4 Km
L'Apescheria
1,6 Km
Ristorante Pizzeria da Tonino
1,6 Km
Pizzeria e focacceria Express
1,6 Km
Mostra tutto

Caratteristiche

Rif.:
61179758
Piano:
Basso di 4
Totale piani:
4
Posti auto:
1
Balconi:
1
Terrazzi:
1
Mostra tutto
Prezzo Prezzo
€ 445.000
Rata mutuo Rata mutuo
€ 2.065 / mese
Spese annue Spese annue
€ 0
Proponi il tuo prezzoProponi il tuo prezzo

Classe Energetica

E
E
E
E
E
E
E
E
E
Anno di costruzione:
2005
Riscaldamento:
Autonomo
Tipo impianto:
A radiatori
Tipo alimentazione:
Metano

Ti interessa visionare l'immobile?

Fissa un appuntamento  Fissa un appuntamento

Richiedi informazioni

Clicca su Leggi per aprire l'informativa
* Questi campi sono obbligatori

Calcola il tuo mutuo

Semplice e senza impegno
Anticipo

( % )
Mutuo

( % )

pochi semplici passi

inserisci i tuoi dati
Questionario completato
Grazie per aver richiesto un appuntamento senza impegno con un nostro Consulente del Credito e Assicurativo.

Hai inserito correttamente tutti i dati necessari e a breve riceverai una e-mail con un link da convalidare per inviare i tuoi dati.
Affiliato
Studio Alassio Sas
Via Milite Ignoto, 22 17021 Alassio (SV)

Il nostro staff


  • Francesco Puleio
    Affiliato

  • Gianluca Gaino
    Responsabile
Via Milite Ignoto, 22 17021 Alassio (SV)
Zona: Alassio
Mostra su mappa
Orari: Dal Lunedi al Sabato dalle ore 09.00 alle ore 12.30 e dalle 15.30 alle 19.30 Domenica su appuntamento
Affiliato
Studio Alassio Sas
Via Milite Ignoto, 22 17021 Alassio (SV)

2026 Tecnocasa Franchising S.p.A. - P. IVA 08365160152 - Via Monte Bianco 60/A 20089 Rozzano (MI). Ogni agenzia ha un proprio titolare ed è autonoma. Privacy policy | Policy utilizzo | Cookie policy