Bilocale in vendita

Alassio, Via San Giovanni Battista
€ 249.000
2 locali 2 locali
50 Mq 50 Mq
1 bagno 1 bagno

Bilocale in vendita

Alassio, Via San Giovanni Battista

Descrizione annuncio

A soli 500 metri dalle splendide spiagge di Alassio, proponiamo in vendita un elegante appartamento situato al primo piano di uno stabile recentemente riqualificato grazie a lavori di miglioramento delle parti comuni.

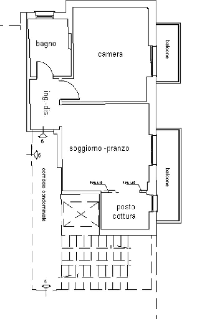
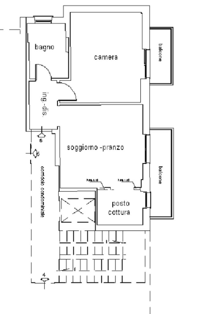
L’immobile, servito da ascensore, si apre su un ingresso con portoncino blindato che conduce a un disimpegno ben organizzato, in grado di distribuire in modo ottimale tutti gli ambienti della casa. La zona giorno è luminosa e accogliente, con cucina a vista e accesso al primo balcone. Il bagno, finestrato, con box doccia. La zona notte è composta da una spaziosa camera matrimoniale con accesso al secondo balcone.

L’appartamento è stato oggetto di una ristrutturazione totale ed è dotato di impianto “gas free”, soluzione moderna ed efficiente che garantisce comfort e sicurezza.

A completare la proprietà troviamo una comoda cantina al piano terra e il posto auto condominiale situato sotto lo stabile.

Una vera opportunità, ideale sia come casa vacanze pronta da vivere, sia come investimento ad alta redditività.

Contenute le spese di gestione.

Mostra tutto

Nelle vicinanze

Trasporto pubblico Trasporto pubblico
stazione di Alassio
stazione di Alassio
940 m
Trasporto pubblico
870 m
Laigueglia
Laigueglia
2,3 Km
Ricariche auto elettriche Ricariche auto elettriche
Villa Della Pergola
1,3 Km
Farmacia Farmacia
Farmacia S. Ambrogio
500 m
Ospedali Ospedali
Ospedali
750 m
Croce Bianca Laigueglia
2,5 Km
Supermercati Supermercati
Carrefour Market
580 m
Negozi Negozi
Negozi
500 m
La Foccaccia di Ugo
520 m
United Colors of Benetton
580 m
Pasticceria Oliva2
580 m
Il fornetto
640 m
Bar Bar
Rudy Cafè
730 m
Sangiuccu
1,0 Km
Caffè Italia
2,6 Km
Ristoranti Ristoranti
Pizzeria e focacceria Express
360 m
L'Apescheria
410 m
Pizzeria La Pantera Rosa
500 m
Ristorante Pizzeria da Tonino
600 m
U'Recantu
720 m
Mostra tutto

Caratteristiche

Rif.:
61198993
Piano:
1 di 4 con ascensore (Piano basso)
Balconi:
2
Camere da letto:
1
Arredamento:
Completo
Condizionamento:
Autonomo
Mostra tutto
Prezzo Prezzo
€ 249.000
Rata mutuo Rata mutuo
€ 1.188 / mese
Spese annue Spese annue
€ 600
Proponi il tuo prezzoProponi il tuo prezzo

Classe Energetica

B
B
B
B
B
B
B
B
B
EP invernale del fabbricato:
EP estiva del fabbricato:
Anno di costruzione:
1950
Riscaldamento:
Autonomo
Tipo impianto:
Ad aria
Tipo alimentazione:
Aria

Ti interessa visionare l'immobile?

Fissa un appuntamento  Fissa un appuntamento

Richiedi informazioni

Clicca su Leggi per aprire l'informativa
* Questi campi sono obbligatori

Calcola il tuo mutuo

Semplice e senza impegno
Anticipo

( % )
Mutuo

( % )

pochi semplici passi

inserisci i tuoi dati
Questionario completato
Grazie per aver richiesto un appuntamento senza impegno con un nostro Consulente del Credito e Assicurativo.

Hai inserito correttamente tutti i dati necessari e a breve riceverai una e-mail con un link da convalidare per inviare i tuoi dati.
Affiliato
Studio Alassio Sas
Via Milite Ignoto, 22 17021 Alassio (SV)

Il nostro staff


  • Francesco Puleio
    Affiliato

  • Gianluca Gaino
    Responsabile
Via Milite Ignoto, 22 17021 Alassio (SV)
Zona: Alassio
Mostra su mappa
Orari: Dal Lunedi al Sabato dalle ore 09.00 alle ore 12.30 e dalle 15.30 alle 19.30 Domenica su appuntamento
Affiliato
Studio Alassio Sas
Via Milite Ignoto, 22 17021 Alassio (SV)

2026 Tecnocasa Franchising S.p.A. - P. IVA 08365160152 - Via Monte Bianco 60/A 20089 Rozzano (MI). Ogni agenzia ha un proprio titolare ed è autonoma. Privacy policy | Policy utilizzo | Cookie policy